



400 6626 286
產品描述
MX-YL-188-01能型壓力變送器是為流體工業應用所設計,可以測量液體、蒸汽和氣體的壓力。采用全球領先高精度單晶硅技術,保證傳感器的高穩定性和高可靠性。
本是一款外部供電、具有遠傳通訊功能的高精度智能變送器。應用領域是針對野外,露天場所等惡劣環境,如輸油,輸汽,供暖等輸送能源管道等地方進行壓力監測,實現信號有線遠傳。配合無線通訊接收模塊使用,上位機可直接使用組態實時監測采集數據。
另外本款產品也可以電池供電、具有無線通訊功能的高精度智能變送器。應用領域是針對野外或配套供電環境不便的場合,如輸油,輸汽,供暖等輸送能源管道等地方進行壓力監測,實現信號無線遠傳。配合無線通訊接收模塊使用,上位機可直接使用組態實時監測采集數據。
產品特點
?采用世界先進的隔離技術,具有超強的抗干擾性能
?采用全球領先高精度硅技術,
?高精度,精度優于0.1% 最高精度高達0.05%(單晶硅技術)
?高穩定性和高可靠性、完善的自診斷及遠程通訊功能
?可選擇HART協議或rs485通訊協議
?電池供電使用時間長
?如果采用特殊技術,最高量程可以達到200MPA
應用領域
?液位測量與控制樓宇自控、恒壓供水
?石化、環保、石油
?液壓及氣動控制系統
?制藥、食品行業、自動控制和檢測系統
?MVR蒸發器,多效蒸發器設備(多用測氣項壓力)
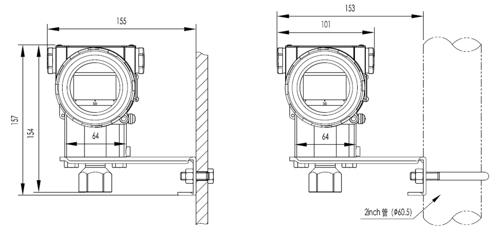
產品外形
墻裝連接方式 垂直配管連接方式
訂購指南
| 產品型號: | MX-YL-188-01 |
| 壓力量程: | -100KPA-0~50KPa~40MPa-100MPA 量程可以定制 |
| 綜合精度: | 0.25%FS(代號A);0.1%FS(代號S);0.075%FS(代號X) |
| 輸出信號: | 4-20mA(兩線制代碼2);4-20mA+HART(代碼3);RS485(代碼4) |
| 過載壓力: | 1.5倍額定壓力 |
| 輸入電壓: | 12~36VDC(代碼E1);24VDC供電(兩線制代碼E2);電池供電(代碼E3); |
| 爆破壓力: | 1.5倍額定壓力 |
| 工作溫度: | -20℃~80℃ |
| 補償溫度: | -10℃~70℃ |
| 非線性值: | 滿量程的0.1% |
| 防爆等級: | ExiaII CT6 |
| 壓力連接: | M20 1.5,G1/2,G1/4,1/2NPT,DN25,DN50(可按客戶要求) |
| 電氣接口: | 1/2NPT,M20*1.5,G1/2。 |
| 特殊溫度: | 加散熱片最高耐溫200° |
| 接液材質: | 304、316L、 |
訂購指南
| 型號 | 量程 | 精度 | 輸出 | 供電 | 安裝方式 | 其他 |
| MX-YW-188-01 | 0-5KPA | 0.25% | 4-20MA | 24VDC | M20*1.5 | 無 |
| 訂貨舉例: | MX-YW-188-01-5KPA-A2-E2-M20 | |||||
特別提醒
本產品采用進口的單晶硅芯體,清零功能方面。在無壓力的情況下,按M鍵5秒鐘,顯示屏左下面出現ZIRM字母時松手,然后連續按Z鍵三次,出現PV=0時,再連續按M鍵3次,顯示屏左下方沒有字母時候已經清零完畢。
公司名稱:上海美續測控技術有限公司
辦公地址:上海市松江區三新北路1800弄國家電子商務園24號樓3層
工廠地址:上海松江區光華路650號
聯系電話:021-67881626
公司網址:www.sltgss.com 、詳細說明請參照使用說明